Top.Mail.Ru

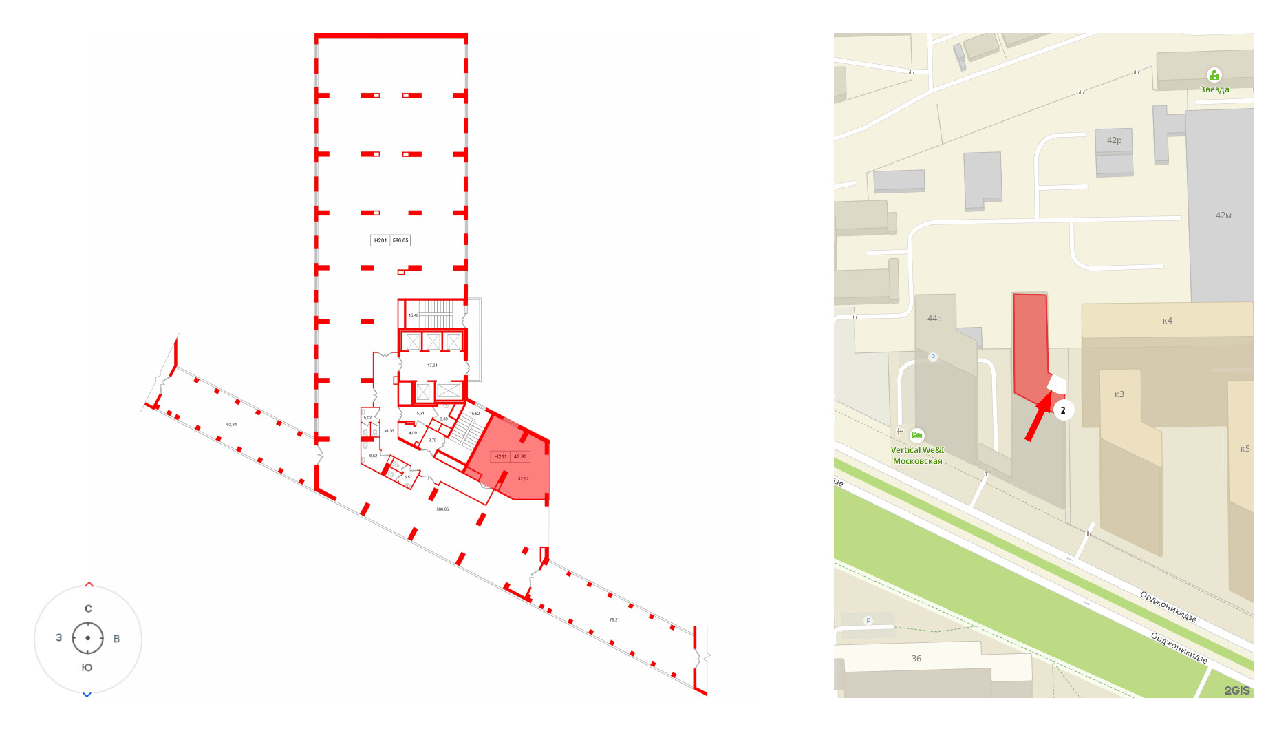
Коммерческое помещение 42.92 м², ID 1448308

за 13 906 080 руб.
Помещение в ЖК Вертикаль на Московской (корп.2)., 42.92 м², 2 этаж
Помещение в ЖК Вертикаль на Московской (корп.2)., 42.92 м², 2 этаж
42,92 м² 2 из 26
Общая площадь Этаж
Отделка —  Нет
Выберите условия покупки
Перейти к сравнению