Top.Mail.Ru
Характеристики
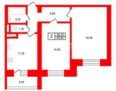
Количество комнат
2
Общая площадь, м2
53.34
Жилая площадь, м2
26
Площадь кухни, м2
17.3
Высота потолков
2.77
Этаж/этажность
9/12
Тип дома
Кирп.Монолит
Адрес
ул Кубинская, д 78 Санкт-Петербург, ул. Кубинская
Право собственности
В собственности
Лифт
Нет
Балкон
Лоджия
Санузел
Тип 2

Описание квартиры

Номер объявления: 17023 - назовите его оператору.

Новогодняя акция.
Продаётся отличная, солнечная квартира с большой кухней-гостинной с отделкой "NORD LINE SILVER BK", в престижном Московском районе. Имеется мастер-спальня с собственной ванной комнатой.

Комплекс с авторской архитектурой и двумя центральным входными группами ресепшен и зоны отдыха.

На территории кленовая аллея с Арт-стеллой, цветочная аллея и сад трав с уютным дворам. Рядом с домом детский сад и лицей.

Отделка Nord Line вдохновлена скандинавскими интерьерами, лаконичными формами и природными фактурами. Разработано два варианта цветового оформления - White и Silver. В коллекции WHITE для напольных покрытий использован кварцвинил светло-серого оттенка.
Во всех квартирах установлены входные двери с отделкой ПВХ панелями и белоснежные межкомнатные двери с надежной фурнитурой. В комнатах – флизелиновые обои под покраску, матовые натяжные потолки, современные белые высокие плинтусы с кабель-каналом, а также матовые серебристые выключатели и розетки.
В ванной комнате - крупноформатная керамическая плитка Kerama Marazzi и система «теплый пол».
Установлена сантехника от ведущих российских и европейских брендов, подвесная тумба с умывальником и зеркало.
Напольное покрытие на балконах и лоджиях – керамогранит.

Похожие квартиры
2-комн. кв. 59.7 м² 23/24 этаж
2-комн. кв. 59.7 м² 23/24 этаж
2-комн. кв. 59.7 м² 23/24 этаж
2-комн. кв. 59.7 м² 23/24 этаж
2-комн. кв. 59.7 м² 23/24 этаж
2-комн. кв. 59.7 м² 23/24 этаж
16 100 000 руб.
Московская
Пулковское шоссе, д 40 к 2 литера А
2-комн. кв. 58.72 м² 2/9 этаж
2-комн. кв. 58.72 м² 2/9 этаж
2-комн. кв. 58.72 м² 2/9 этаж
2-комн. кв. 58.72 м² 2/9 этаж
2-комн. кв. 58.72 м² 2/9 этаж
2-комн. кв. 58.72 м² 2/9 этаж
17 300 000 руб.
Комендантский Проспект
ул Лидии Зверевой, д 6 Санкт-Петербург, Комендантский проспект, участок 7
2-комн. кв. 51.3 м² 5/7 этаж
2-комн. кв. 51.3 м² 5/7 этаж
2-комн. кв. 51.3 м² 5/7 этаж
2-комн. кв. 51.3 м² 5/7 этаж
2-комн. кв. 51.3 м² 5/7 этаж
2-комн. кв. 51.3 м² 5/7 этаж
16 500 000 руб.
Гостиный Двор
наб Реки Фонтанки, д 15
2-комн. кв. 64.4 м² 5/5 этаж
2-комн. кв. 64.4 м² 5/5 этаж
2-комн. кв. 64.4 м² 5/5 этаж
2-комн. кв. 64.4 м² 5/5 этаж
2-комн. кв. 64.4 м² 5/5 этаж
2-комн. кв. 64.4 м² 5/5 этаж
18 000 000 руб.
Проспект Просвещения
ул Руднева, д 22 к 2 литера А
2-комн. кв. 66.9 м² 12/13 этаж
2-комн. кв. 66.9 м² 12/13 этаж
2-комн. кв. 66.9 м² 12/13 этаж
2-комн. кв. 66.9 м² 12/13 этаж
2-комн. кв. 66.9 м² 12/13 этаж
2-комн. кв. 66.9 м² 12/13 этаж
18 050 000 руб.
пр-кт Энгельса, д 139/21
2-комн. кв. 57.2 м² 3/22 этаж
2-комн. кв. 57.2 м² 3/22 этаж
2-комн. кв. 57.2 м² 3/22 этаж
2-комн. кв. 57.2 м² 3/22 этаж
2-комн. кв. 57.2 м² 3/22 этаж
2-комн. кв. 57.2 м² 3/22 этаж
18 200 000 руб.
пр-кт Кузнецова, д 11
2-комн. кв. 78.6 м² 5/6 этаж
2-комн. кв. 78.6 м² 5/6 этаж
2-комн. кв. 78.6 м² 5/6 этаж
2-комн. кв. 78.6 м² 5/6 этаж
2-комн. кв. 78.6 м² 5/6 этаж
2-комн. кв. 78.6 м² 5/6 этаж
15 600 000 руб.
Горный институт
линия Косая, д 24/25
2-комн. кв. 55.3 м² 11/23 этаж
2-комн. кв. 55.3 м² 11/23 этаж
2-комн. кв. 55.3 м² 11/23 этаж
2-комн. кв. 55.3 м² 11/23 этаж
2-комн. кв. 55.3 м² 11/23 этаж
2-комн. кв. 55.3 м² 11/23 этаж
15 500 000 руб.
Старая Деревня
ул Туристская, д 23 к 5 литера А
2-комн. кв. 52.24 м² 4/4 этаж
2-комн. кв. 52.24 м² 4/4 этаж
2-комн. кв. 52.24 м² 4/4 этаж
2-комн. кв. 52.24 м² 4/4 этаж
2-комн. кв. 52.24 м² 4/4 этаж
2-комн. кв. 52.24 м² 4/4 этаж
15 500 000 руб.
Проспект Ветеранов
Санкт-Петербург, поселок Стрельна, проспект Буденного, участок 16
2-комн. кв. 56.1 м² 3/14 этаж
2-комн. кв. 56.1 м² 3/14 этаж
2-комн. кв. 56.1 м² 3/14 этаж
2-комн. кв. 56.1 м² 3/14 этаж
2-комн. кв. 56.1 м² 3/14 этаж
2-комн. кв. 56.1 м² 3/14 этаж
15 000 000 руб.
Лесная
Лабораторный пр-кт, д 23
1-комн. кв. 50.8 м² 1/5 этаж
1-комн. кв. 50.8 м² 1/5 этаж
1-комн. кв. 50.8 м² 1/5 этаж
1-комн. кв. 50.8 м² 1/5 этаж
1-комн. кв. 50.8 м² 1/5 этаж
1-комн. кв. 50.8 м² 1/5 этаж
17 000 000 руб.
ул Инструментальщиков, д 18
1-комн. кв. 33.1 м² 3/14 этаж
1-комн. кв. 33.1 м² 3/14 этаж
1-комн. кв. 33.1 м² 3/14 этаж
1-комн. кв. 33.1 м² 3/14 этаж
1-комн. кв. 33.1 м² 3/14 этаж
1-комн. кв. 33.1 м² 3/14 этаж
16 950 000 руб.
Приморская
ул Уральская, д 21
1-комн. кв. 35 м² 8/19 этаж
1-комн. кв. 35 м² 8/19 этаж
1-комн. кв. 35 м² 8/19 этаж
1-комн. кв. 35 м² 8/19 этаж
1-комн. кв. 35 м² 8/19 этаж
1-комн. кв. 35 м² 8/19 этаж
16 500 000 руб.
Фрунзенская
Московский пр-кт, д 73 к 5 литера А
1-комн. кв. 37 м² 1/9 этаж
1-комн. кв. 37 м² 1/9 этаж
1-комн. кв. 37 м² 1/9 этаж
1-комн. кв. 37 м² 1/9 этаж
1-комн. кв. 37 м² 1/9 этаж
1-комн. кв. 37 м² 1/9 этаж
16 280 000 руб.
Елизаровская
пр-кт Обуховской Обороны, д 36
3-комн. кв. 95.7 м² 9/10 этаж
3-комн. кв. 95.7 м² 9/10 этаж
3-комн. кв. 95.7 м² 9/10 этаж
3-комн. кв. 95.7 м² 9/10 этаж
3-комн. кв. 95.7 м² 9/10 этаж
3-комн. кв. 95.7 м² 9/10 этаж
16 280 000 руб.
Ленинский Проспект
ул Маршала Захарова, д 18 к 1 литера А
Перейти к сравнению