Top.Mail.Ru

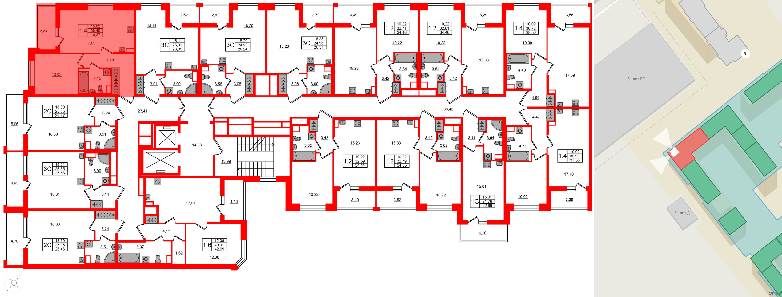
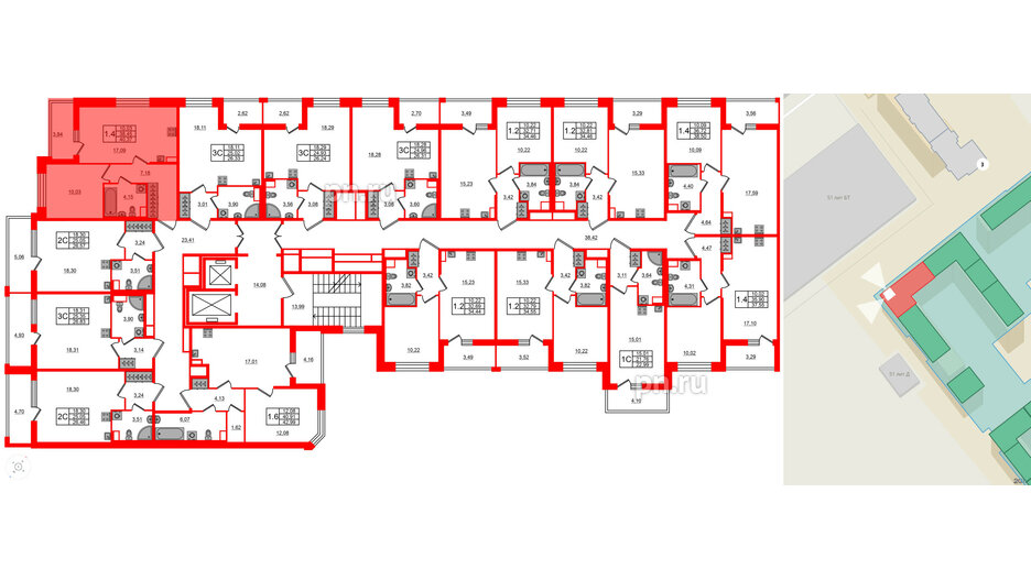
2е комнатная квартира 38.45 м², № 173

Квартира в ЖК Астра Континенталь, 1 комнатная, 38.45 м², 2 этаж
Квартира в ЖК Астра Континенталь, 1 комнатная, 38.45 м², 2 этаж
38,45 м² 10,03 м² 17,09 м² 2.77 м 2 из 11
Общая площадь Площадь комнат Площадь кухни Высота потолка Этаж
Тип санузла:  Совмещенный Лоджия Отделка — 
NORD LINE SILVER ВК NEW

Условия покупки

3 км от центра |
*Подробнее
Новогодняя скидка на квартиру 1,6 млн руб |
*Подробнее
Встреча на объекте

Посмотрите жилой комплекс и оцените преимущества

Выберите условия покупки
Перейти к сравнению