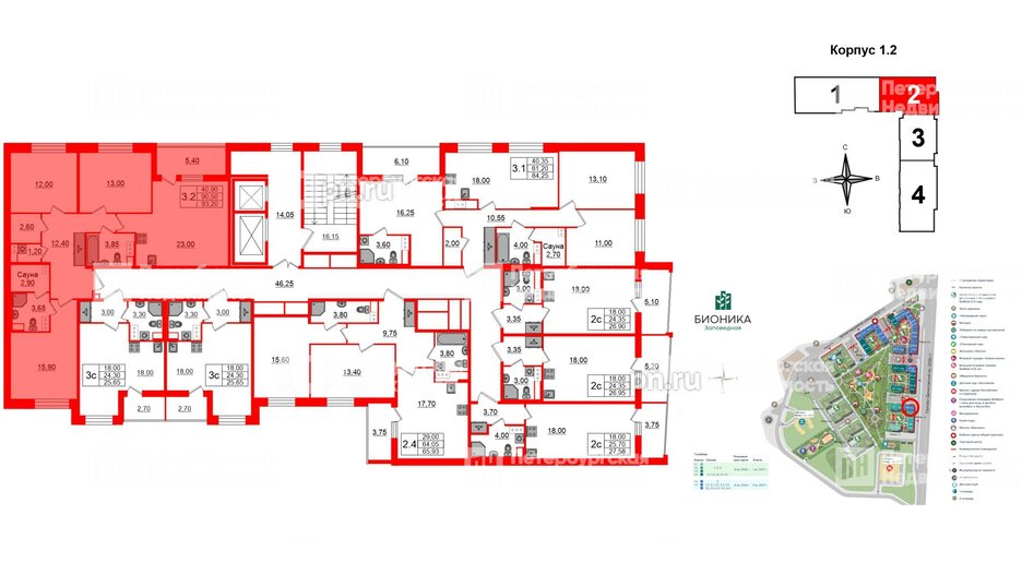
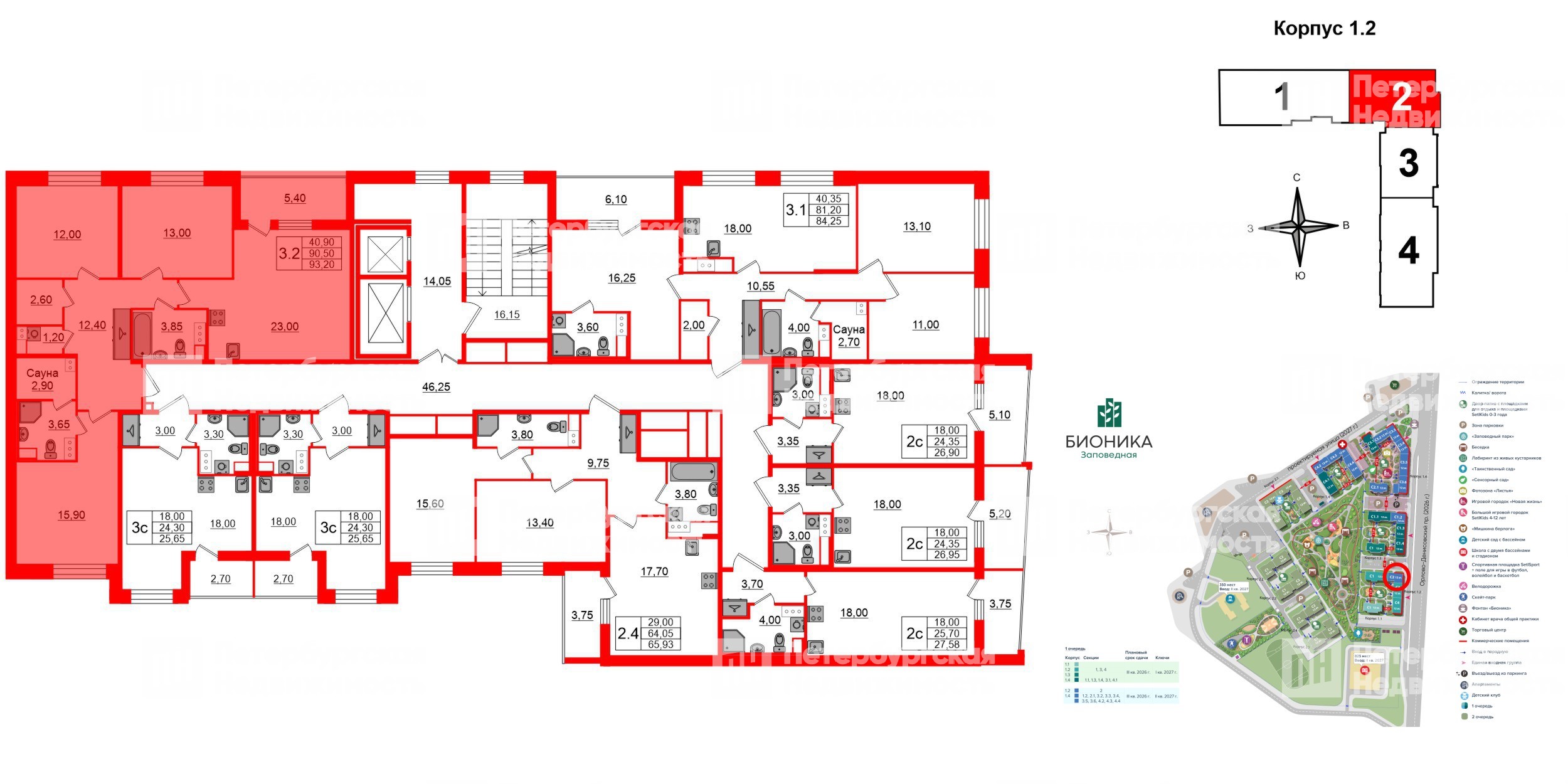
4е комнатная квартира 90.5 м², № 114
ЖК «Бионика Заповедная» , Корпус 1.2
Срок сдачи — III кв. 2026 г.
Уникальные квартиры
Выберите условия покупки
Забронируйте объект по телефону
Онлайн-бронирование временно недоступно