Top.Mail.Ru

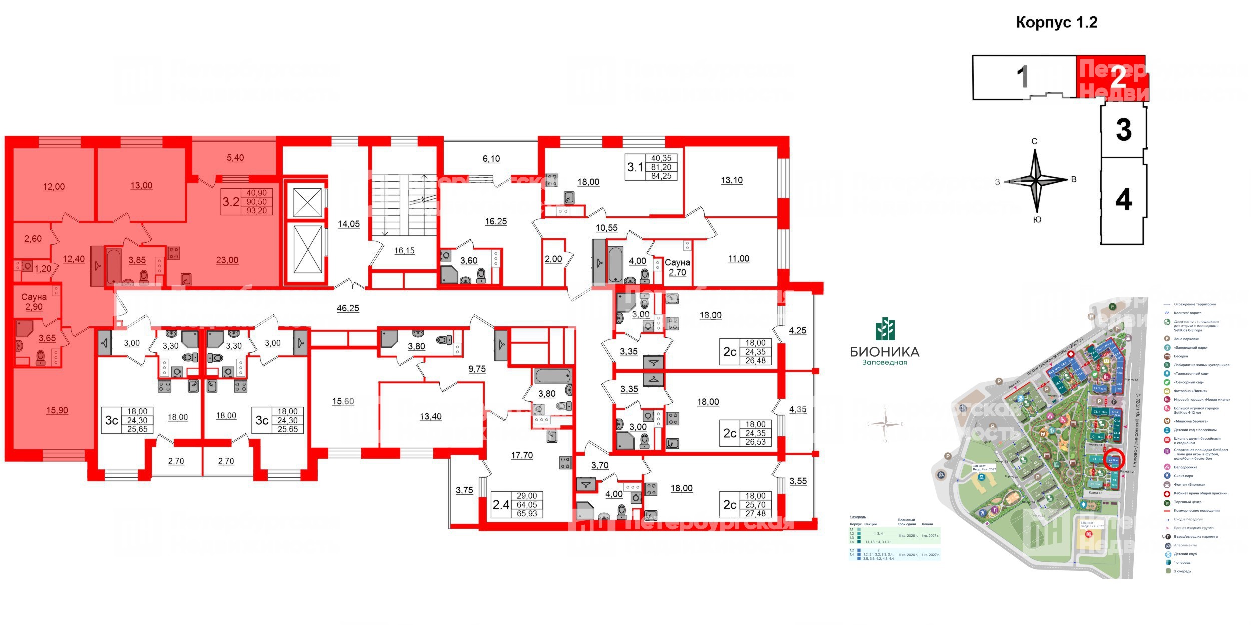
4е комнатная квартира 90.5 м², № 98

Квартира в ЖК «Бионика Заповедная», 3 комнатная, 90.5 м², 4 этаж
Квартира в ЖК «Бионика Заповедная», 3 комнатная, 90.5 м², 4 этаж
90,50 м² 40,90 м² 23,00 м² 2.77 м 4 из 12
Общая площадь Площадь комнат Площадь кухни Высота потолка Этаж
Два санузла Лоджия Отделка — 
Норд Лайн светлый плюс

Уникальные квартиры

Условия покупки

Первый взнос от 5 миллионов! |
*Подробнее
Встреча на объекте

Посмотрите жилой комплекс и оцените преимущества

Выберите условия покупки
Перейти к сравнению