Top.Mail.Ru

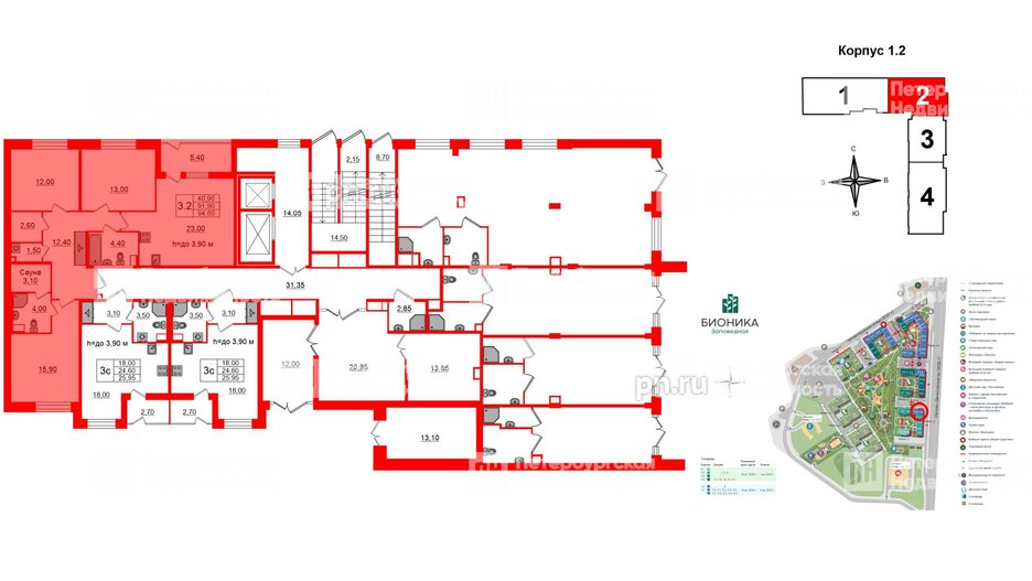
4е комнатная квартира 91.9 м², № 74

Квартира в ЖК «Бионика Заповедная», 3 комнатная, 91.9 м², 1 этаж
Квартира в ЖК «Бионика Заповедная», 3 комнатная, 91.9 м², 1 этаж
91,90 м² 40,90 м² 23,00 м² 3.97 м 1 из 12
Общая площадь Площадь комнат Площадь кухни Высота потолка Этаж
Два санузла Лоджия Отделка — 
Норд Лайн светлый плюс

Уникальные квартиры

Условия покупки

Первый взнос от 5 миллионов! |
*Подробнее
Встреча на объекте

Посмотрите жилой комплекс и оцените преимущества

Выберите условия покупки
Перейти к сравнению