Top.Mail.Ru

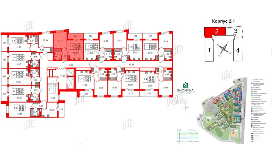
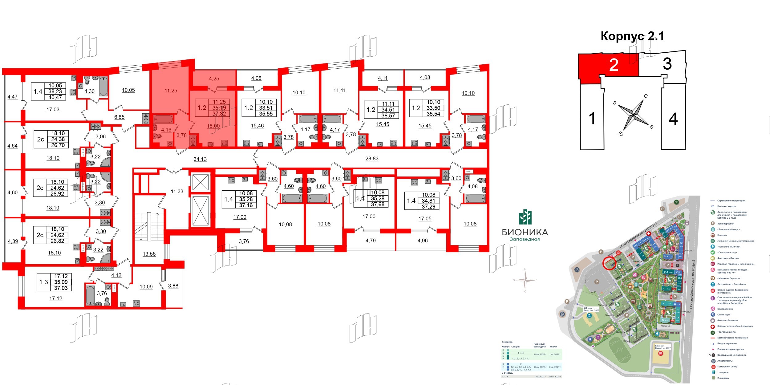
2е комнатная квартира 35.19 м², № 177

Квартира в ЖК «Бионика Заповедная», 1 комнатная, 35.19 м², 2 этаж
Квартира в ЖК «Бионика Заповедная», 1 комнатная, 35.19 м², 2 этаж
35,19 м² 11,25 м² 16,00 м² 2.77 м 2 из 12
Общая площадь Площадь комнат Площадь кухни Высота потолка Этаж
Тип санузла:  Совмещенный Лоджия Отделка — 
Норд Лайн светлый плюс

Условия покупки

Первый взнос от 5 миллионов! |
*Подробнее
Встреча на объекте

Посмотрите жилой комплекс и оцените преимущества

Выберите условия покупки
Перейти к сравнению