Top.Mail.Ru

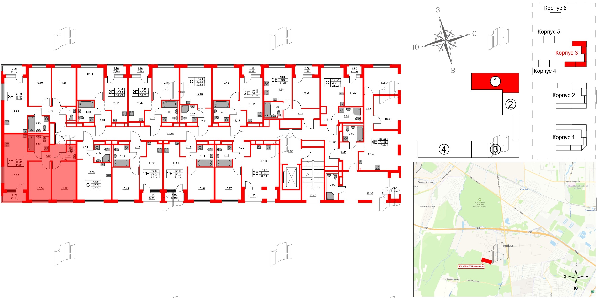
3е комнатная квартира 49.69 м², № 100

Квартира в ЖК GloraX Новоселье, 2 комнатная, 49.69 м², 8 этаж
Квартира в ЖК GloraX Новоселье, 2 комнатная, 49.69 м², 8 этаж
49,69 м² 21,88 м² 15,56 м² 2.5 м 8 из 9
Общая площадь Площадь комнат Площадь кухни Высота потолка Этаж
Два санузла Лоджия Отделка — 
Чистовая
Выберите условия покупки
Перейти к сравнению