Top.Mail.Ru

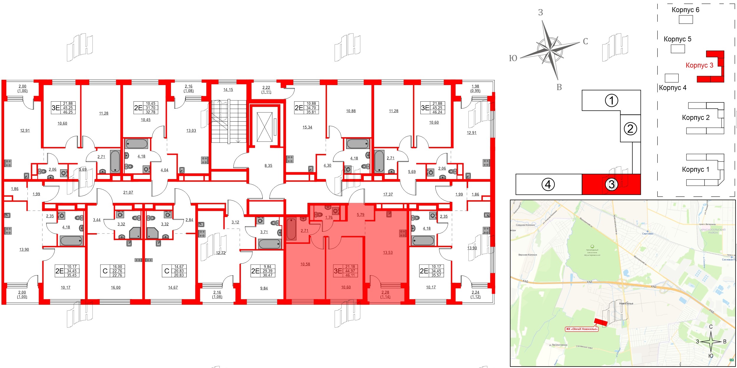
3е комнатная квартира 46.11 м², № 216

Квартира в ЖК GloraX Новоселье, 2 комнатная, 46.11 м², 8 этаж
Квартира в ЖК GloraX Новоселье, 2 комнатная, 46.11 м², 8 этаж
46,11 м² 21,18 м² 13,53 м² 2.5 м 8 из 9
Общая площадь Площадь комнат Площадь кухни Высота потолка Этаж
Тип санузла:  Раздельный Лоджия Отделка — 
Чистовая
Выберите условия покупки
Перейти к сравнению