Top.Mail.Ru

3е комнатная квартира 49.18 м², № 637 Переуступка

Квартира в ЖК «Город звёзд», 2 комнатная, 49.18 м², 4 этаж
Квартира в ЖК «Город звёзд», 2 комнатная, 49.18 м², 4 этаж
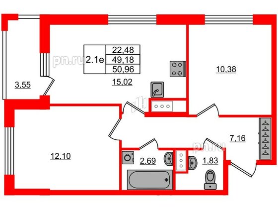
49,18 м² 22,48 м² 15,02 м² 2.77 м 4 из 15
Общая площадь Площадь комнат Площадь кухни Высота потолка Этаж
Тип санузла:  Раздельный Лоджия Отделка — 
NORD LINE SILVER

Условия покупки

Легкие платежи по ипотеке |
Легкие платежи по ипотеке
*Подробнее
Рассрочка: Первый взнос 950 тысяч |
*Подробнее
2-ЕВРО семейная квартира | Рассрочка: первый платеж 520 тысяч
*Подробнее
Встреча на объекте

Посмотрите жилой комплекс и оцените преимущества

Выберите условия покупки
Перейти к сравнению