Top.Mail.Ru

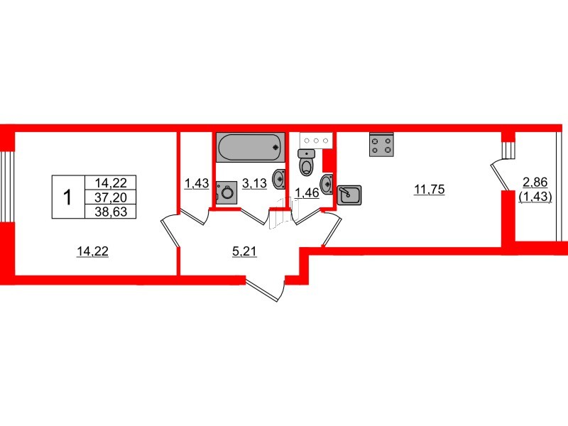
1 комнатная квартира 38.63 м², № 166

Квартира в ЖК «Кинопарк», 1 комнатная, 38.63 м², 3 этаж
Квартира в ЖК «Кинопарк», 1 комнатная, 38.63 м², 3 этаж
38,63 м² 14,22 м² 11,75 м² 2.75 м 3 из 9
Общая площадь Площадь комнат Площадь кухни Высота потолка Этаж
Тип санузла:  Раздельный Лоджия Отделка — 
Новая светлая
Выберите условия покупки
Перейти к сравнению