Top.Mail.Ru

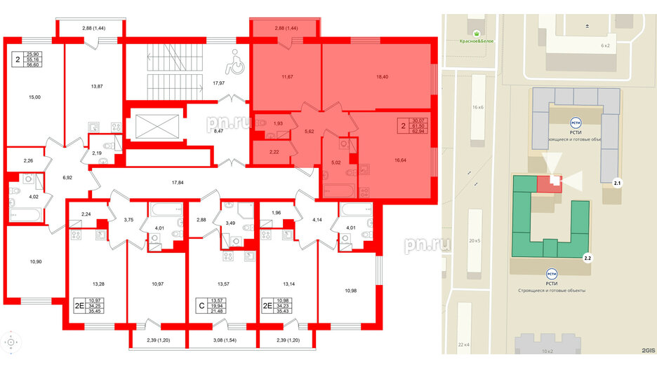
3е комнатная квартира 62.94 м², № 810

Квартира в ЖК Кинопарк, 2 комнатная, 62.94 м², 8 этаж
Квартира в ЖК Кинопарк, 2 комнатная, 62.94 м², 8 этаж
62,94 м² 30,07 м² 16,64 м² 2.75 м 8 из 9
Общая площадь Площадь комнат Площадь кухни Высота потолка Этаж
Два санузла Лоджия Отделка — 
Нет
Выберите условия покупки
Перейти к сравнению