Top.Mail.Ru

NEWПИТЕР - жилой квартал комфорт-класса, строящийся на юго-западе Санкт-Петербурга, с тщательно проработанной концепцией благоустройства и продуманной инфраструктурой.

Расположение

Комплекс расположен рядом с дворцово-парковыми ансамблями: в 10 минутах езды от Стрельны и в 15 от Петергофа. В 3 минутах езды от NEWПИТЕР удобный выезд на КАД, а за 20 минут можно добраться до Аэропорта Пулково. Любители парков найдут для себя множество мест для отдыха – квартал находится в одной из самых зелёных локаций города.

Для сторонников активного образа жизни рядом с NEWПИТЕР работает ледовая арена ICE RINK, где регулярно проходят тренировки по хоккею и фигурному катанию, а на втором этаже расположен тренажёрный зал.

 

О проекте

NEWПИТЕР - жилой квартал невысокой этажности в едином дизайн-коде. На территории предусмотрено 6 детских садов и 2 школы, одна из которых уже приняла первых учеников. Отсутствие ступенек и крылец обеспечивает удобный доступ в парадные, а просторные помещения для хранения колясок и велосипедов сохранят чистоту в доме. В закрытых дворах организованы современные игровые площадки для детей, для взрослых установлены тренажёры для занятий спортом и оборудована площадка для йоги. В проекте предусмотрены машино-места на каждую квартиру, а значит в любое время можно без труда припарковаться. В жилом комплексе также организованы велодорожки, зоны отдыха, променад и плодовый сад.

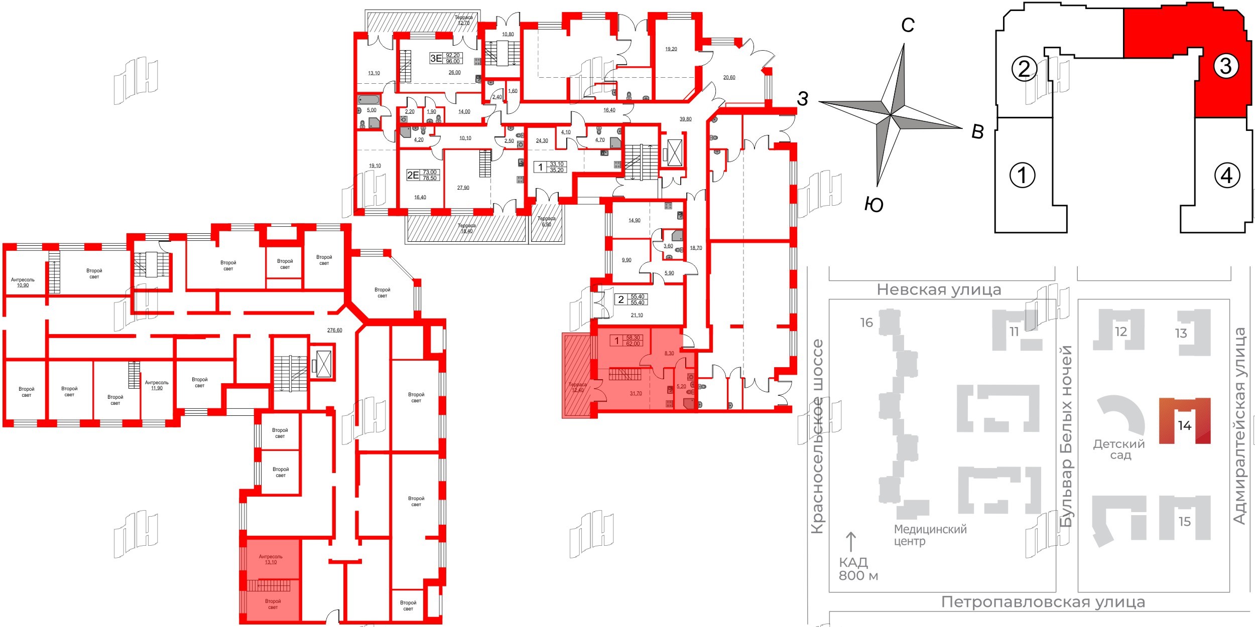
Квартиры

В ЖК «NEWПИТЕР» множество вариантов планировок 1-комнатных, 2-комнатных, 3-комнатных и 4-комнатных квартир. Предусмотрены варианты с просторными кухнями-гостиными, мастер-спальнями, гардеробными и постирочными. Высота потолков на первом этаже – 4,65 м. В сочетании с панорамными окнами это даёт максимальное количество солнечного света.

Преимущества

  • Комфортная застройка 6-12 этажей
  • Собственная социальная инфраструктура
  • Колясочные для хранения в доме
  • Уникальное благоустройство: собственный прогулочный бульвар для жителей
  • Безопасный закрытый двор с видеонаблюдением
  • Дома из кирпича

Уникальные квартиры

Доступные опции

Паркинг от 750 000 ₽
Кладовые от 454 400 ₽
Меблировка от 224 000 ₽
Отделка включена

Цены и планировки

Количество комнат
Срок сдачи
Корпус
S общая, м²
от
S кухни, м²
от
 
 
 
Купить в ипотеку
новое
Взнос: до
Платёж: до
К сожалению, ничего не найдено
Пожалуйста, измените условия поиска
Мы поможем вам подобрать квартиру
ЖК «NEWПИТЕР»
Этажи
Этаж
Карта
  • Сдан
  • 2026
  • 2027
  • 2027+
  • Нет в продаже
Паркинг Р1 Сдан 14 машиномест
Паркинг Р2 Сдан 1 машиноместо
Паркинг 2.1 Сдан 2 машиноместа
Паркинг 2.2 Сдан 1 машиноместо
Паркинг 2.3 IV кв. 2026 г. 134 машиноместа
Паркинг 2.4 IV кв. 2026 г. 130 машиномест
ЖК «NEWПИТЕР»
Этажи
Этаж
Карта
  • Сдан
  • 2026
  • 2027
  • 2027+
  • Нет в продаже
Корпус 2.3 IV кв. 2026 г. 55 кладовых
Корпус 2.4 IV кв. 2026 г. 68 кладовых
  • январь
  • февраль
  • март
  • апрель
  • май
  • июнь
  • июль
  • август
  • сентябрь
  • октябрь
  • ноябрь
  • декабрь
  • 2026
  • 2025
  • 2024
  • 2023
  • 2022
  • 2021

На карте

Отделка

Ваниль

Комплекты меблировки Рассрочка

от 224 000 руб.
Фото
Состав комплекта

В комплект новосела входит все самое необходимое, чтобы как можно скорее подготовить квартиру к переезду. Это решение для тех, кто не готов тратить время на поездки по магазинам и разработку дизайна. В комплектацию включена корпусная и мягкая мебель, бытовая техника.

Скачайте презентацию, чтобы узнать подробный состав меблировки
Скачать презентацию

Ипотечный калькулятор





Стоимость объекта недвижимости, руб.
  • 6.1 млн. ₽
  • 19.2 млн. ₽
Первоначальный взнос, руб
0 %
  • 0 тыс. ₽
  • 19.2 млн. ₽
Срок кредита, лет
  • 1 год
  • 15 лет
  • 30 лет
Для вас есть предложение от 0 банков
Подходящих программ не найдено
Ежемесячный платеж
0 руб.
Средняя ставка
0%
Сумма кредита
0 руб.
Подать заявку
Подать заявку
Одна заявка во все банки

Контакты

У вас есть вопросы?

Мы поможем вам подобрать ваш вариант покупки.
Хотите мы перезвоним вам за 2 минуты?

Отзывы клиентов

4 марта 2026
Лазарева Алёна Николаевна
Хотелось бы выразить огромную благодарность ипотечному менеджеру Комаровой Анастасии. У нас была очень долгая и сложная сделка по программе семейной ипотеки. Длительно не согласовывали документы в банке, технические неполадки на платформе регистрации, исправления договора перед оформлением сделки и т.д. Ежедневно Анастасия прилагала максимум усилий для того, чтобы данная сделка состоялась, и была с нами регулярно на связи. Нашла способ оформления сделки при сложившейся технической ситуации и в самые короткие сроки пересогласовала, и назначила дату в банке. На момент сделки контролировала процесс, мы чувствовали поддержку и участие, отвечала на наши многочисленные вопросы. Спасибо за ваш труд!
4 марта 2026
Наталья
Выражаем большую благодарность команде: ‎Артемьев Никита, ‎Лодочникова Кристина, ‎Анастасия Пыльцына. ‎Помогли в покупке и оформлении квартиры, кладового помещения онлайн, очень удобная функция! ‎Особенную благодарность выражаем своему менеджеру АРТЕМЬЕВУ НИКИТЕ за профессиональную и качественную работу, компетентность. Все время был с нами на связи, все 24 часа в сутки, помогал развеять страхи и сомнения, умело ориентировал на рынке квартир, учитывал пожелания и запросы, помогал в решении всех вопросов. А также за оперативный подбор подходящих вариантов, сопровождение на всех этапах оформления документов. Очень тактичен, вежлив, профессионал своего дела. ‎Спасибо за внимание к клиентам, доброжелательное отношение, поддержку грамотными советами, оперативность и профессионализм, за успешную сделку! ‎Рекомендую этого специалиста для сделок по покупке квартир! 
22 февраля 2026
Наталья
Хочу поблагодарить Владу Зубову за прекрасную работу. Грамотный, вежливый, терпеливый сотрудник, который помог мне приобрести квартиру в рассрочку. Влада учла все мои пожелания, небольшой первоначальный взнос. И чуть больше, чем за неделю, провела дистанционную сделку. Спасибо большое!
20 февраля 2026
Ольга
Большое спасибо Екатерине Комаровой за помощь в покупке квартиры в строящемся доме. В новостройке для меня главное — не просто "красивый вид из окна", а надежность вложений. Екатерина провела блестящую аналитику: сравнила несколько ЖК, подробно о каждом ЖК рассказала, подсветила плюсы и минусы конкретных секций и этажей, постоянно была на связи, отвечала на любые вопросы. В итоге мы быстро вышли на сделку с полным пониманием того, что покупаем. Рекомендую как грамотного специалиста!
19 февраля 2026
Ирина
Хочу выразить огромную благодарность Тулиновой Жанне Викторовне за ее работу!!! Прекрасный человек, профессионал в своем деле, было приятно сотрудничать, ничего лишнего, все прозрачно и открыто, поэтому сразу сложились доверительные отношения! Спасибо большое, всем советую обращаться к Жанне!
11 февраля 2026
Елена и Екатерина
Выражаем огромную, искреннюю благодарность нашему риелтору Лещевой Марии!!! Большой профессионал в очень непростой деятельности!!! Помогала на всех этапах от показа квартиры до окончания сделки. В любое время суток на связи. С Марией очень легко и просто!!! Помимо высоких профессиональных качеств, мгновенно получаешь консультацию по любому вопросу, которые касаются различных сделок с недвижимостью. Прекрасный человек, доброжелательная в общении - это очень важно!!! Мария, мы Вам желаем успехов и удачи в вашей деятельности, и больше клиентов!!! Очень рекомендуем обращаться к риелтору Лещевой Марии, Спасибо Вам большое!!!

Понравился ЖК? Расскажи об этом друзьям!

Подписаться на обновления
Перейти к сравнению