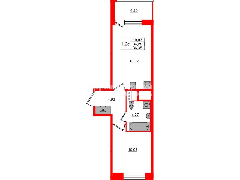
2е комнатная квартира 34.25 м², № 46
ЖК Setl Лофт , Корпус 1
Срок сдачи — IV кв. 2027 г.
Условия покупки
*Предложение действительно с 01.12.2025 по 31.01.2026 (либо до даты изменения застройщиком условий продаж) при условии заключения договора участия в долевом строительстве квартиры-студии общей площадью 21,65 м2 стоимостью 7 750 028,85 руб. в ЖК SETL Лофт (ЖК «СЭТЛ Лофт») с условием 100% оплаты. Для внесения 100% оплаты открывается спец. счет в рамках услуги СБР/аккредитива в течение 2 рабочих дней с даты подписания договора, с целью перевода средств на эскроу-счет после регистрации договора. Характеристики передаваемой квартиры указаны в договоре. Изображение не отображает фактические элементы благоустройства, а также материалы отделки фасада, входных групп и других мест общего пользования жилого дома, могут отличаться от изображенных. Количество квартир ограничено. ЖК SETL Лофт (ЖК «СЭТЛ Лофт»): Санкт-Петербург, ул. Георгия Чернышёва, кад.номер ЗУ 78:14:0007691:37482. Застройщик ООО «Специализированный застройщик «Сэтл Московское шоссе». Проектная декларация на сайте ЕИСЖС (https://наш.дом.рф). Реклама ООО «ЦРП «Петербургская Недвижимость», ИНН 7816094750. Подробности предложения на сайте pn.ru.