Top.Mail.Ru

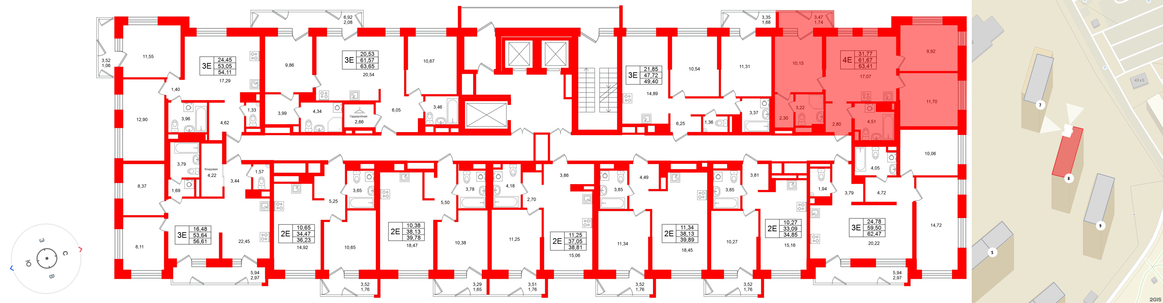
4е комнатная квартира 63.41 м², № 209

Квартира в ЖК Юнтолово, 3 комнатная, 63.41 м², 20 этаж
Квартира в ЖК Юнтолово, 3 комнатная, 63.41 м², 20 этаж
63,41 м² 31,77 м² 17,07 м² 2.76 м 20 из 22
Общая площадь Площадь комнат Площадь кухни Высота потолка Этаж
Два санузла Лоджия Отделка — 
Комфорт Темная
Выберите условия покупки
Перейти к сравнению