Top.Mail.Ru

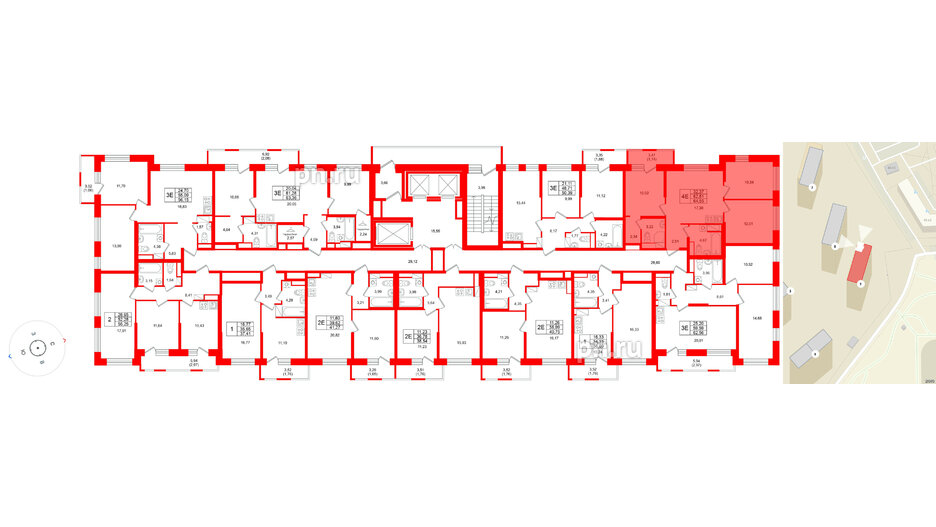
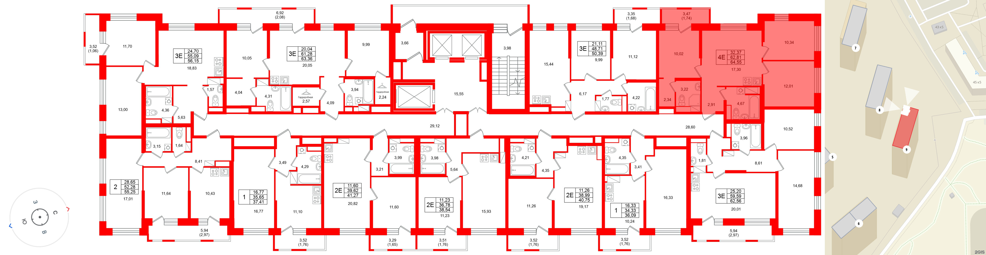
4е комнатная квартира 64.55 м², № 66

Квартира в ЖК Юнтолово, 3 комнатная, 64.55 м², 7 этаж
Квартира в ЖК Юнтолово, 3 комнатная, 64.55 м², 7 этаж
64,55 м² 32,37 м² 17,30 м² 2.76 м 7 из 22
Общая площадь Площадь комнат Площадь кухни Высота потолка Этаж
Два санузла Лоджия Отделка — 
Комфорт Светлая
Выберите условия покупки
Перейти к сравнению