Top.Mail.Ru

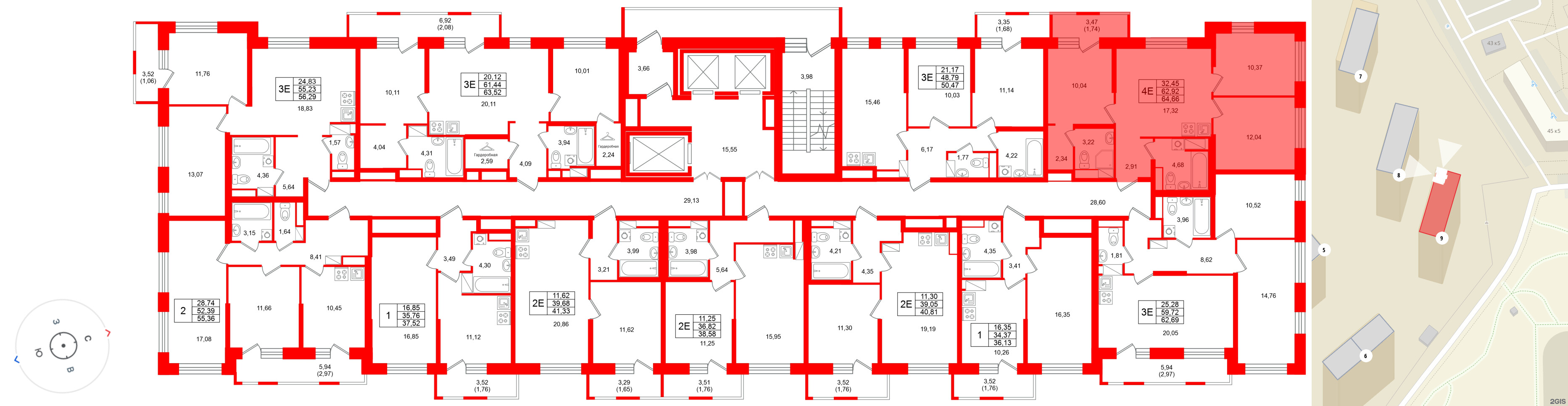
4е комнатная квартира 64.66 м², № 121

Квартира в ЖК Юнтолово, 3 комнатная, 64.66 м², 12 этаж
Квартира в ЖК Юнтолово, 3 комнатная, 64.66 м², 12 этаж
64,66 м² 32,45 м² 17,32 м² 2.76 м 12 из 22
Общая площадь Площадь комнат Площадь кухни Высота потолка Этаж
Два санузла Лоджия Отделка — 
Комфорт Темная
Выберите условия покупки
Перейти к сравнению