Top.Mail.Ru

Клубные апартаменты Hovard Club — это роскошная элегантность Петербурга, в которой переплетаются история города и его современность. Расположившись в старинном квартале Коломна, воспетой Пушкиным, особняк дает своим резидентам возможность прочувствовать настоящий дух Северной столицы.

Местоположение
Hovard Club разместился в самом сердце Петербурга — Адмиралтейском районе, на Мастерской улице. Со всех сторон он окружен каналами, историческими местами и многочисленными объектами культуры. В шаговой доступности набережная канала Грибоедова, музей-квартира Александра Блока, Мариинский театр и многое другое. 
До Дворцовой площади на транспорте можно добраться за 10 минут, примерно столько же времени понадобиться для выезда на ЗСД, а аэропорт «Пулково» всего в получасе езды.

О проекте
Hovard Club — это реконструированный, в соответствии с современными технологиями, особняк 1841 года постройки, сохранивший свой исторический вид и атмосферу дореволюционного Петербурга. Пятиэтажный клубный комплекс с цокольным пространством состоит из 105 резиденций квартирного типа и 55 гостиничных апартаментов. Парадные оснащены лифтами.
Помимо жилых помещений внутри комплекса разместились вместительное лобби, ресторан, кафе, спортзал, коворкинг и beauty-кабинет.
Вход в Hovard Club осуществляется через единую входную зону, арка со стороны Мастерской улицы. Из резиденций комплекса открываются живописные виды на пышные золотые купола Никольского собора и кирпичную башенку строгой лютеранской кирхи Яани Кирик (Святого Иоанна).

Архитектура
При реконструкции особняка, построенного архитектором Иеронимом Корсини, были соблюдены все каноны классицизма: сохранен рустованный декор и ордерный строй фасадов. Таким образом, Hovard Club гармонично вписался в историческую среду этого тихого и уютного квартала. 
Внутреннее убранство входных групп, лобби и жилых помещений тоже выдержано в стиле классического дворцового Петербурга.

Входная группа
Парадный холл Hovard Club представляет из себя просторный и наполненный светом атриум. Здесь строгие силуэты колонн и отделку из темного дерева смягчают уютные мебельные уголки и большие арочные ниши. 
При входе гостей и жителей дома всегда встречает консьерж, который готов выполнить любые поручения — от заказа билетов до вызова на дом любого технического специалиста.
В мягкой лаунж-зоне можно встретиться с друзьями, деловыми партнерами или просто отдохнуть.

Инфраструктура
Hovard Club окружает уже развитая городская инфраструктура, но часть необходимых сервисов и услуг резиденты клубных апартаментов могут получить на месте.
К лобби примыкает стильное и уютное кафе, где можно насладиться легким завтраком в европейском стиле. Здесь также расположился beauty-кабинет, предлагающий косметологические услуги.
Для решения деловых вопросов в стенах особняка разместилась бизнес-зона. Уединиться с ноутбуком можно в коворкинг-пространстве. Если же намечаются серьезные переговоры, к услугам жителей — отдельный офис.
В клубных апартаментах есть фитнес-зона. Она состоит из помещения с кардио-тренажерами и оборудованием для силовых тренировок, а также гимнастического зала для специальных занятий.

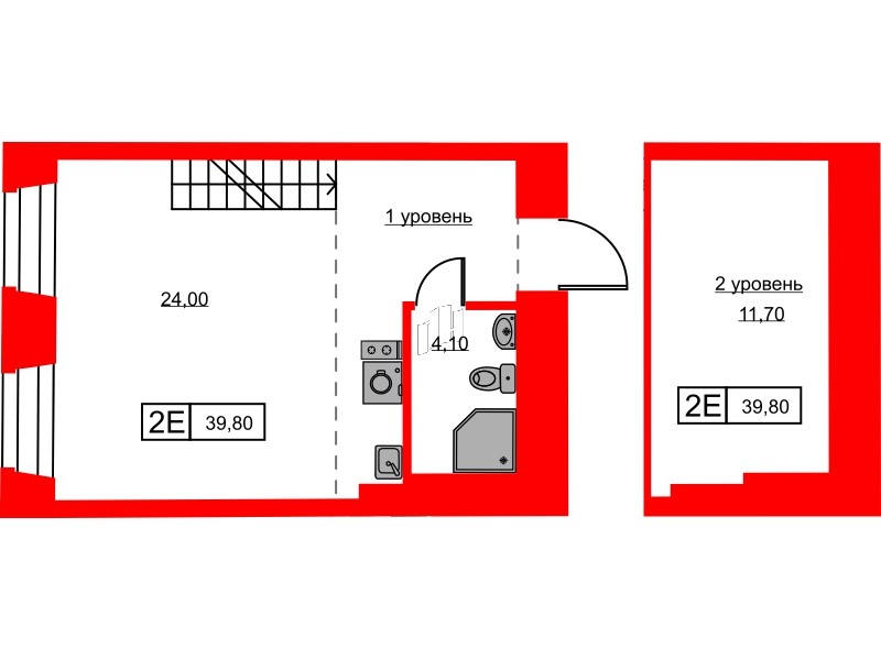
Квартиры
На каждом этаже не более 6 резиденций. Площадь квартир составляет от 23 м2 до 100 м2, высота потолков — от 3,65 м до 4,3м. Помещения отличают большие окна с массивными каменными подоконниками и толстая кирпичная кладка стен. В квартирах на пятом этаже есть антресоли, где можно обустроить спальню или библиотеку. Финишная отделка резиденций выполнена в классическом стиле.

Преимущества

  • Клубные апартаменты в историческом центре
  • Историческое здание, построенное в 19 веке
  • Стойка ресепшн и консьерж-сервис
  • Зона лобби с beauty-кабинетами и зоной коворкинга
  • Кафе и лаунж зона с библиотекой
  • 105 резиденций с отделкой под ключ
  • Высота потолков до 4,3м

Доступные опции

Меблировка от 224 000 ₽
Отделка включена

Цены и планировки

Количество комнат
Корпус
S общая, м²
от
S кухни, м²
от
 
 
Купить в ипотеку
новое
Взнос: до
Платёж: до
К сожалению, ничего не найдено
Пожалуйста, измените условия поиска
Мы поможем вам подобрать квартиру
  • январь
  • февраль
  • март
  • апрель
  • май
  • июнь
  • июль
  • август
  • сентябрь
  • октябрь
  • ноябрь
  • декабрь
  • 2024

На карте

Отделка

Чистовая

Комплекты меблировки Рассрочка

от 224 000 руб.
Фото
Состав комплекта

В комплект новосела входит все самое необходимое, чтобы как можно скорее подготовить квартиру к переезду. Это решение для тех, кто не готов тратить время на поездки по магазинам и разработку дизайна. В комплектацию включена корпусная и мягкая мебель, бытовая техника.

Скачайте презентацию, чтобы узнать подробный состав меблировки
Скачать презентацию

Ипотечный калькулятор





Стоимость объекта недвижимости, руб.
  • 12.0 млн. ₽
  • 54.1 млн. ₽
Первоначальный взнос, руб
0 %
  • 0 тыс. ₽
  • 54.1 млн. ₽
Срок кредита, лет
  • 1 год
  • 15 лет
  • 30 лет
Для вас есть предложение от 0 банков
Подходящих программ не найдено
Ежемесячный платеж
0 руб.
Средняя ставка
0%
Сумма кредита
0 руб.
Подать заявку
Подать заявку
Одна заявка во все банки

Контакты

У вас есть вопросы?

Мы поможем вам подобрать ваш вариант покупки.
Хотите мы перезвоним вам за 2 минуты?

Отзывы клиентов

28 февраля 2026
Марина Непомнящая
Хочу выразить огромную благодарность Алексею Влащенко и Тимуру Рахманову за отлично проведенную сделку по покупке квартиры)
25 февраля 2026
Светлана
Благодарю Костылеву Светлану за компетентность, оперативность при выборе квартиры и доброжелательное отношение! С первого дня общения и до оформления сделки всегда была на связи, помогала в решении всех вопросов. Спасибо за поддержку, грамотные советы и успешную сделку! Спасибо Климовой Ольге за участие в оформлении сделки, взаимодействие с банком и сопровождение при открытии счетов. Команда профессионалов своего дела!
20 февраля 2026
Сергей Кондратенко
Хотим поблагодарить нашего риелтора Барвенко Наталью за помощь при покупке квартиры. Очень помогла со всеми электронными документами, грамотно все объясняла, на все вопросы ответы поступали сразу. Сделка прошла гладко, без проблем. Большое спасибо за работу!
13 февраля 2026
Ольга
Огромное спасибо Ирине Шинаховой за проведение сделки по покупке квартиры! За все пояснения и объяснения на каждом этапе сделки. Поскольку с покупкой квартиры мы сталкиваемся редко, то вопросов возникает великое множество, особенно, когда сделка с нюансами (переуступки, ипотеки и т.п.). Ирина на все вопросы отвечала очень быстро и буквально за ручку провела через всю сделку. Кроме того, очень приятный в общении человек! Ирине желаю всего самого наилучшего, чтобы руководство почаще отмечало и замечало таких людей!
8 февраля 2026
Елена
Хочу выразить огромную благодарность Светлане Костылевой. Я приобрела с ее помощью квартиру в ЖК «Город звезд». Светлана учла все мои пожелания и предоставила прекрасные варианты. На всех этапах она мне помогала, всегда была на связи. Очень доброжелательная, грамотный специалист. Всем рекомендую, обращайтесь к ней! Светлана, спасибо!
4 февраля 2026
Анна
Благодарю Викторию Дмитриевну за безупречную работу и помощь в приобретении. От поиска оптимального варианта до финального оформления документов — Виктория Пеликуда проявила себя как настоящий эксперт: внимательная, ответственная и всегда на связи. Очень рады, что доверили такую важную сделку именно вам и смело рекомендуем как отличного специалиста!

Понравился ЖК? Расскажи об этом друзьям!

Подписаться на обновления
Перейти к сравнению