Top.Mail.Ru

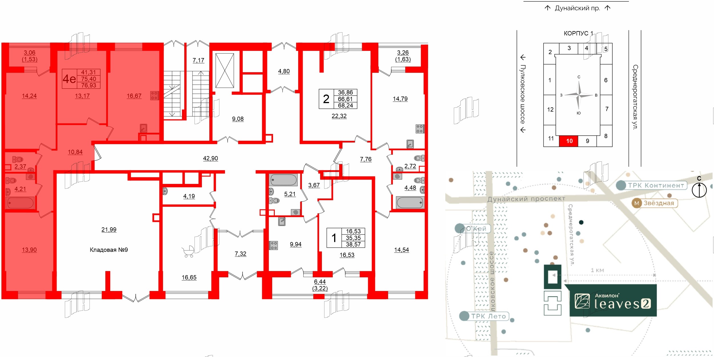
4е комнатная квартира 76.93 м², № 670

Квартира в ЖК Аквилон Leaves, 3 комнатная, 76.93 м², 1 этаж
Квартира в ЖК Аквилон Leaves, 3 комнатная, 76.93 м², 1 этаж
76,93 м² 41,31 м² 16,67 м² 4.48 м 1 из 7
Общая площадь Площадь комнат Площадь кухни Высота потолка Этаж
Два санузла Лоджия Отделка — 
WhiteBOX
Выберите условия покупки
Перейти к сравнению