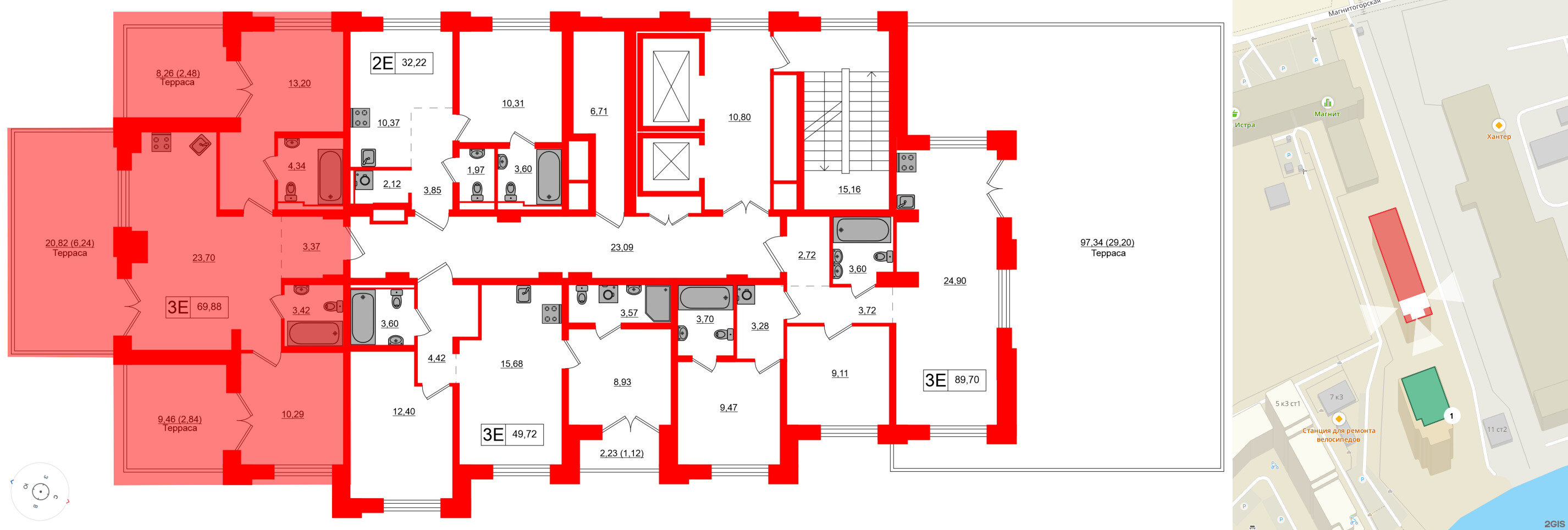
3е комнатная квартира 69.88 м², № 181
ЖК Alpen , Корпус 1
Срок сдачи — IV кв. 2026 г.
| 69,88 м² | 23,49 м² | 23,70 м² | 3 м | 10 из 10 |
| Общая площадь | Площадь комнат | Площадь кухни | Высота потолка | Этаж |
|---|
| Два санузла | Отделка — |
Нет
|
|---|
Уникальные квартиры
Выберите условия покупки
Забронируйте объект по телефону
Онлайн-бронирование временно недоступно