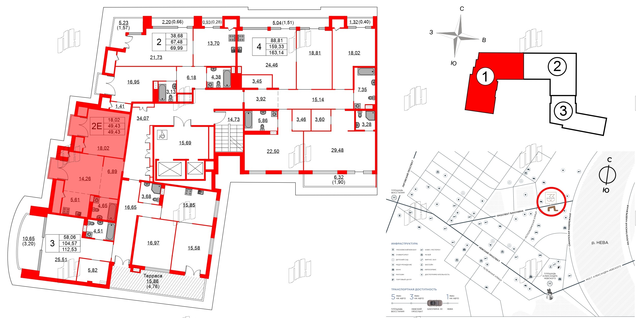
2е комнатная квартира 49.43 м², № 46
ЖК Бакунина 33 ЖК , Корпус 1
Срок сдачи — Сдан
| 49,43 м² | 18,02 м² | 19,87 м² | 3.5 м | 9 из 9 |
| Общая площадь | Площадь комнат | Площадь кухни | Высота потолка | Этаж |
|---|
| Тип санузла:  | Совмещенный | Балкон - нет | Отделка — |
Нет
|
|---|
Выберите условия покупки
Забронируйте объект по телефону
Онлайн-бронирование временно недоступно