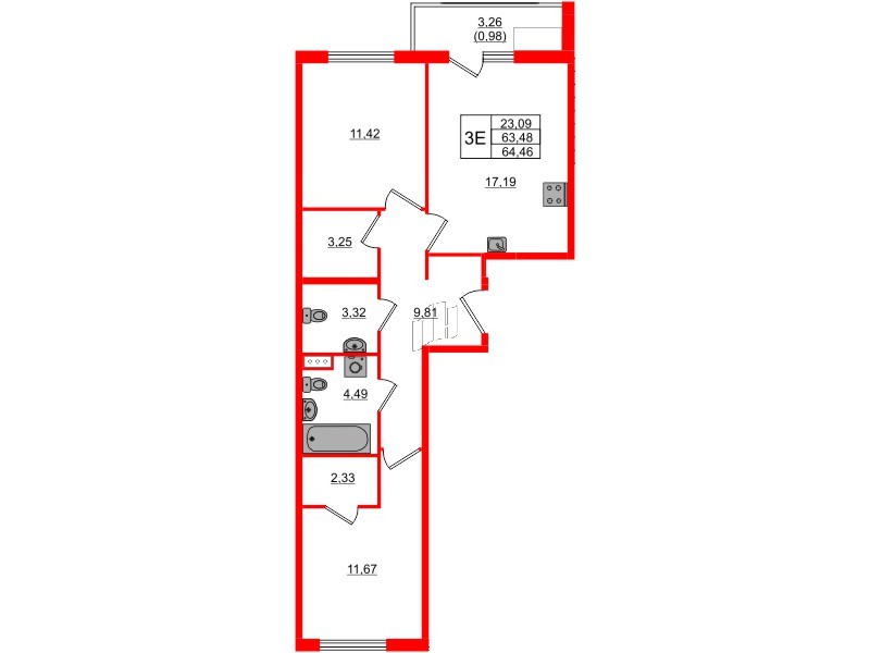
3е комнатная квартира 64.46 м², № 108
ЖК Регенбоген , Корпус 1
Срок сдачи — IV кв. 2025 г.
| 64,46 м² | 23,09 м² | 17,19 м² | 2.74 м | 6 из 7 |
| Общая площадь | Площадь комнат | Площадь кухни | Высота потолка | Этаж |
|---|
| Два санузла | Есть балкон | Отделка — |
Нет
|
|---|
Выберите условия покупки
Забронируйте объект по телефону
Онлайн-бронирование временно недоступно