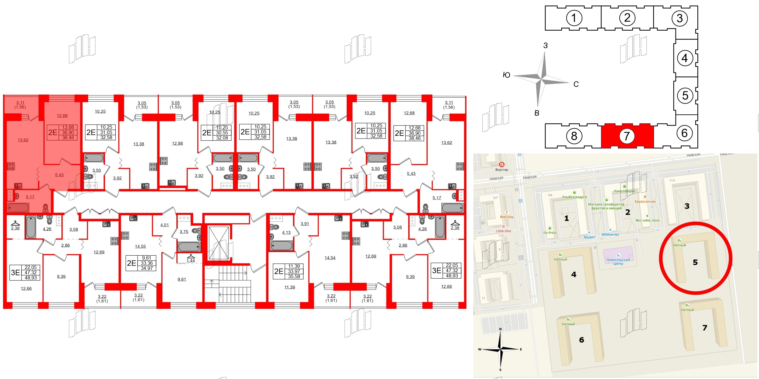
2е комнатная квартира 38.5 м², № 1-В1.8/4
ЖК Квартал Уютный , Дом 5
Срок сдачи — Сдан
| 38,50 м² | 12,68 м² | 13,62 м² | 4 из 9 |
| Общая площадь | Площадь комнат | Площадь кухни | Этаж |
|---|
| Тип санузла:  | Совмещенный | Лоджия | Отделка — |
Нет
|
|---|
Выберите условия покупки
Забронируйте объект по телефону
Онлайн-бронирование временно недоступно