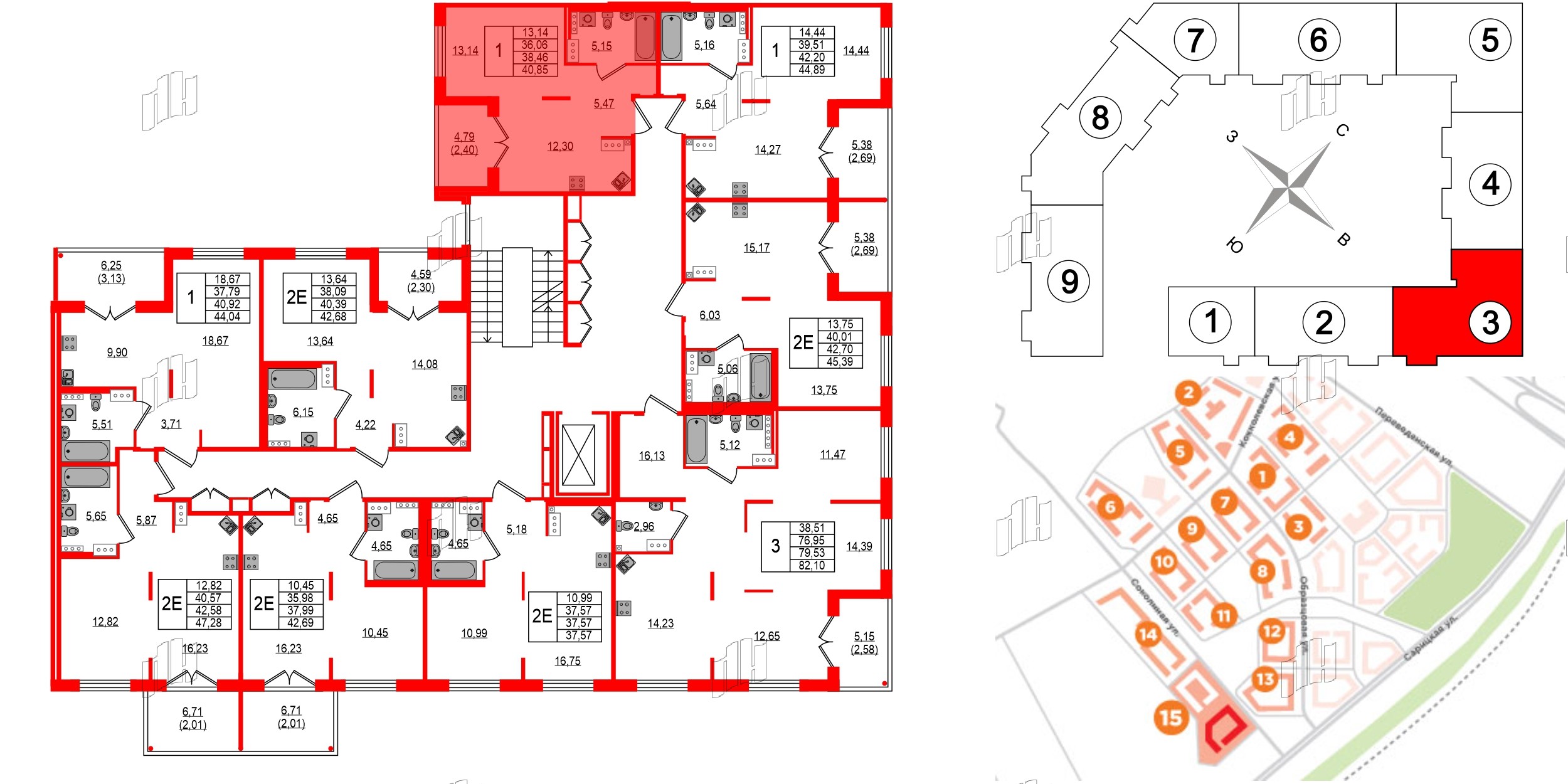
1 комнатная квартира 36.06 м², № 67
ЖК Образцовый квартал , Корпус 15.2
Срок сдачи — II кв. 2026 г.
| 36,06 м² | 13,14 м² | 12,30 м² | 2.87 м | 3 из 4 |
| Общая площадь | Площадь комнат | Площадь кухни | Высота потолка | Этаж |
|---|
| Тип санузла:  | Совмещенный | Лоджия | Отделка — |
Нет
|
|---|
Выберите условия покупки
Забронируйте объект по телефону
Онлайн-бронирование временно недоступно