Top.Mail.Ru

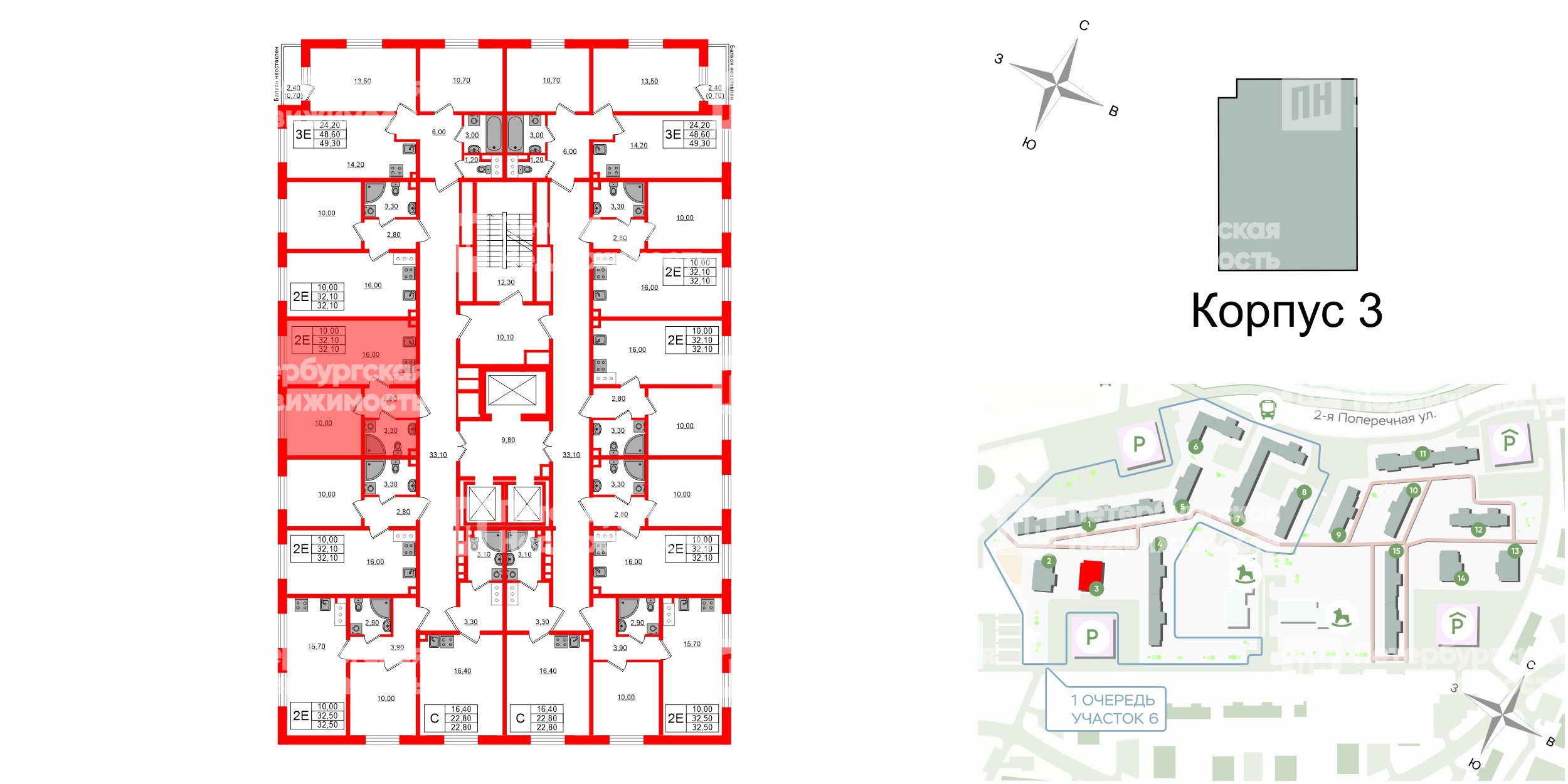
2е комнатная квартира 32.1 м², № 159

Квартира в ЖК Ржевский парк, 1 комнатная, 32.1 м², 15 этаж
Квартира в ЖК Ржевский парк, 1 комнатная, 32.1 м², 15 этаж
32,10 м² 10,00 м² 16,00 м² 2.56 м 15 из 16
Общая площадь Площадь комнат Площадь кухни Высота потолка Этаж
Тип санузла:  Совмещенный Балкон - нет Отделка — 
Comfort Stone
Выберите условия покупки
Перейти к сравнению