Главная
Новостройки
Сибирь
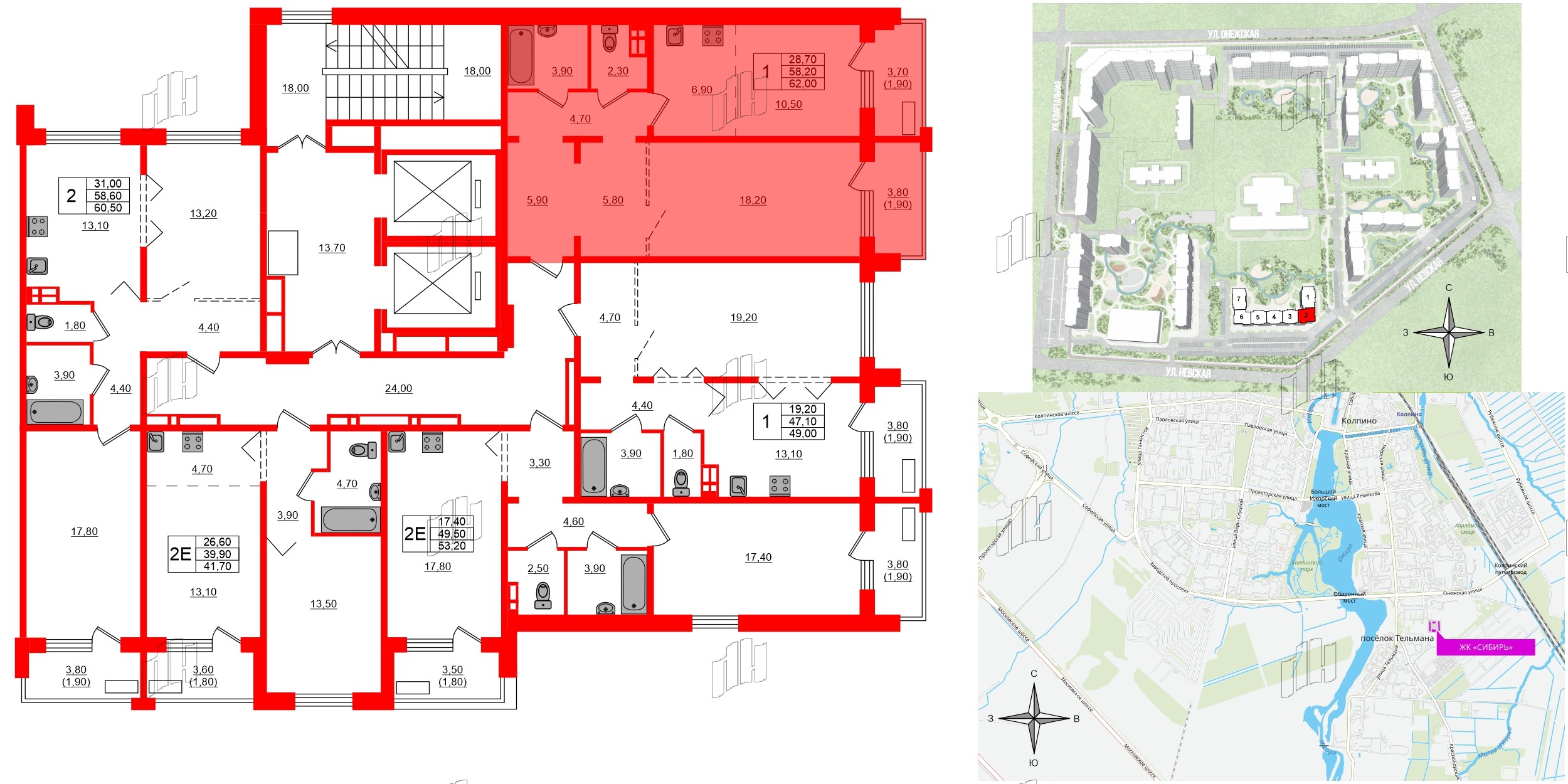
1 комн. кв. 62 м²
1 комнатная квартира 62 м², № 112
ЖК Сибирь
, Корпус 7
Срок сдачи — Сдан
В
избранном
избранное
Удалить из сравнения
Сравнить
Распечатать
Отправить по почте
Планировка
На этаже
На карте
Меблировка
62,00 м²
28,70 м²
6,90 м²
2.69 м
8 из 17
Общая площадь
Площадь комнат
Площадь кухни
Высота потолка
Этаж
Тип санузла: 
Раздельный
Две лоджии
Отделка —
Нет
Запросить цену
100% оплата
Ипотека
от 7 978
₽/мес.
Выбрать условия
Доступные опции
Меблировка
от 224 000 руб.
Выберите условия покупки
Забронируйте объект по телефону
Онлайн-бронирование временно недоступно
Перейти к сравнению
Закрыть