Top.Mail.Ru

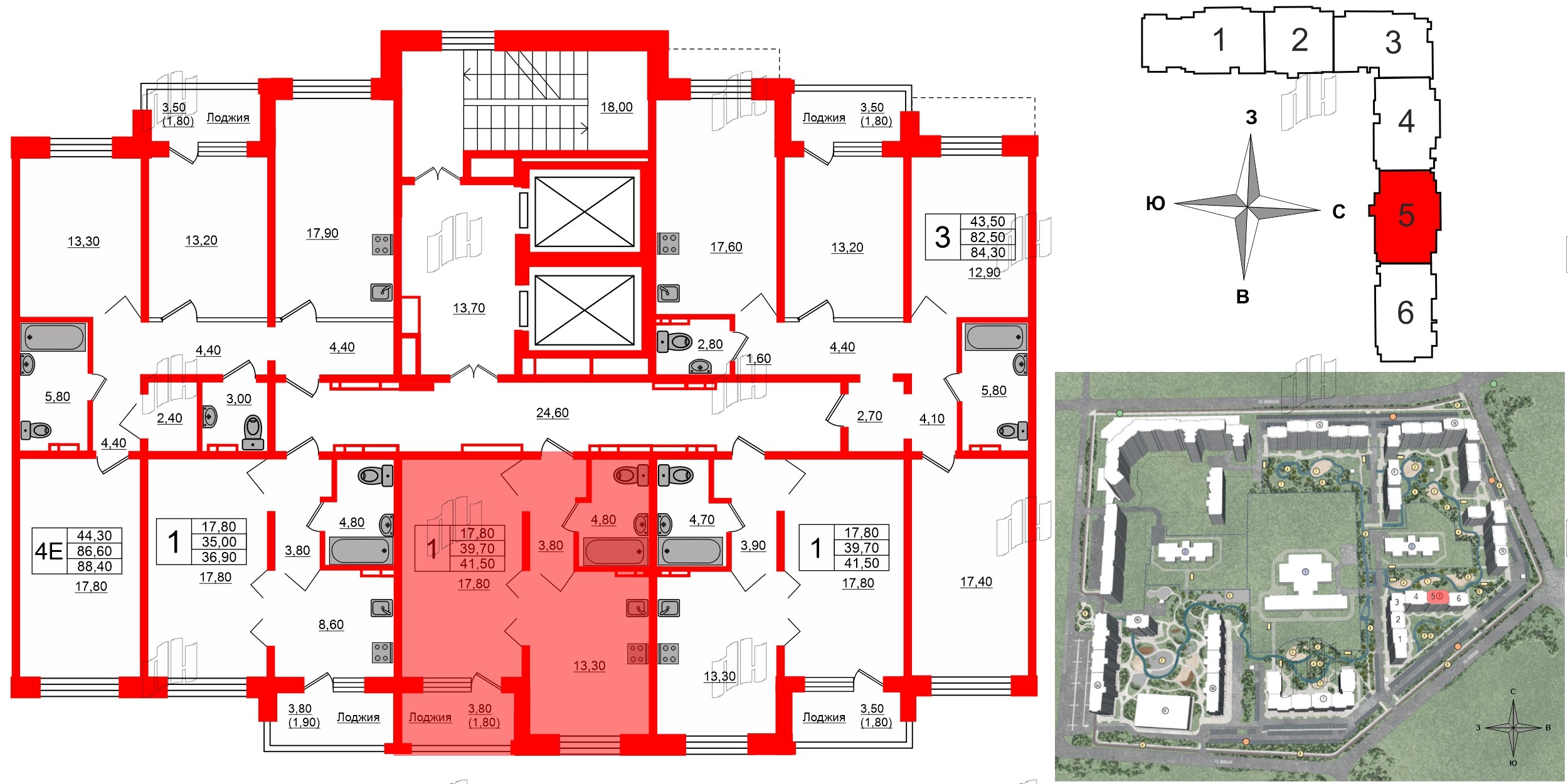
1 комнатная квартира 41.5 м², № 361

Квартира в ЖК Сибирь, 1 комнатная, 41.5 м², 6 этаж
Квартира в ЖК Сибирь, 1 комнатная, 41.5 м², 6 этаж
41,50 м² 17,80 м² 13,30 м² 2.7 м 6 из 17
Общая площадь Площадь комнат Площадь кухни Высота потолка Этаж
Тип санузла:  Совмещенный Лоджия Отделка — 
Нет
Выберите условия покупки
Перейти к сравнению